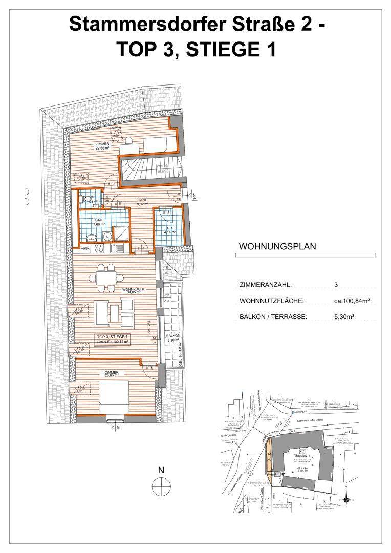
Wohnfläche: ca. 100,84 m²
Terrassenfläche: ca. 5,3 m²
Etage: 1. Dachgeschoss
Zimmer: 3
Terrassen: 1 (Ostbalkon)
Nutzungsart: Wohnen
Zustand: Erstbezug
Bauart: Neubau
Baujahr: 2024
Lagebewertung: sehr gut
Lärmpegel: absolute Ruhelage
Beziehbar: ab sofort
Gesamtmiete: € 1.799,46
Miete: € 1.289,00
Betriebskosten: € 251,00
Sonstiges: € 95,87
Umsatzsteuer: € 163,59
Monatliche Gesamtbelastung: € 1.799,46
Befristung: 5 Jahre mit Verlängerungsoption
Provision: Gemäß Erstauftraggeberprinzip bezahlt der Abgeber die Provision.
Am Fuße des Bisambergs, im idyllischen und äußerst beliebten Stadtteil
Stammersdorf, befindet sich diese hochwertige
Dachgeschosswohnung im Erstbezug.
Der Charme historischer Kellergassen, kaum Verkehr und ein echtes Dorfgefühl
machen diesen Standort zu einem der begehrtesten Wohnorte im Norden Wiens.
Die Wohnung liegt in einem neu errichteten Wohnprojekt, bei dem
der ursprüngliche Altbestand sorgfältig saniert und durch moderne Neubau-Elemente
ergänzt wurde. Das Ergebnis ist eine gelungene Verbindung aus Tradition und
zeitgemäßem Wohnkomfort – eingebettet in eine ruhige, nachbarschaftliche Umgebung.
Auf ca. 100,84 m² Wohnfläche bietet die Dachgeschosswohnung eine
durchdachte Raumaufteilung mit einer großzügigen Wohnküche,
zwei Schlafzimmern, einem Abstellraum, einem Badezimmer mit Dusche sowie einem
separaten WC. Große Fensterflächen sorgen für viel Tageslicht und ein angenehmes
Wohngefühl.
Der ca. 5,3 m² große Ostbalkon erweitert den Wohnraum ins Freie und
lädt zu entspannten Morgenstunden oder ruhigen Abenden ein. Die Wohnung überzeugt
zudem durch hochwertige Neubau-Ausstattung wie Fußbodenheizung,
Klimaanlage, dreifach verglaste Fenster, eigene Wärmepumpe
sowie Glasfaseranschluss.
Trotz der ruhigen Lage ist die Infrastruktur ausgezeichnet: Nahversorger, Schulen,
Kindergärten, Gastronomie sowie öffentliche Verkehrsmittel befinden sich in
fußläufiger Entfernung. Die Nähe zu Bisamberg, Marchfeldkanal, Alter Donau und
Donauinsel bietet zudem vielfältige Freizeit- und Erholungsmöglichkeiten.
Diese Wohnung eignet sich ideal für alle, die modernes Wohnen in
absoluter Ruhelage suchen und gleichzeitig nicht auf die Vorteile
der Stadt verzichten möchten.
Bauweise: Massiv, Ziegel
Boden: Estrich, Fliesen, Steinboden
Befeuerung: Luftwärmepumpe
Balkon: Ostbalkon / -terrasse
Fenster: Doppel- /
Mehrfachverglasung
WCs: Getrennte Toiletten, Gäste-
WC
Bad: Dusche
Küche: Wohnküche / offene Küche
